Office Sublets
Open Menu

Beautiful Office Space in the Heart of Midtown

Midtown West 57th Street
office sublease midtown nyc | office sublets

Multiple Office Configurations Available

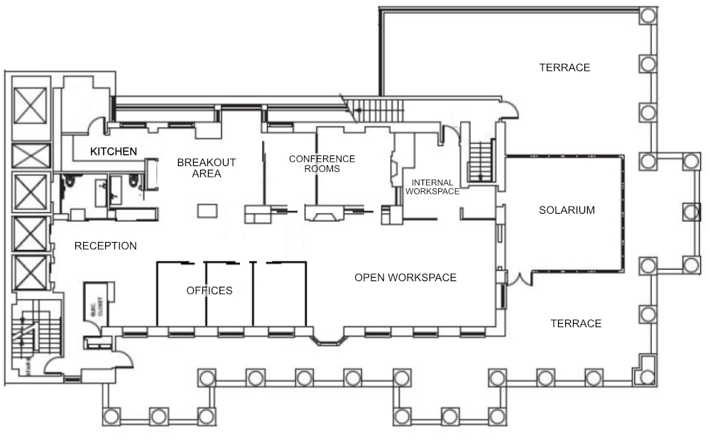
This shared office suite is located on Fifth Avenue in Midtown within a wellness-focused company and offers a range of sublease options, including two private offices, open workspace, and a large solarium suitable for showroom or office use. The suite features access to a large wrap-around terrace, furnished during the non-winter months, providing a unique outdoor amenity. Conveniently located near major subway lines and Midtown amenities.

Private Offices

3

Open Workspaces

10

Meeting Rooms

1

Amenities

  • Twitter icon Wifi
  • Doorman
  • Twitter icon Kitchen
  • Conference Room
  • Furniture
  • Cleaning
  • 24/7 Access
  • Outdoor Space
floor plan | office sublets

Floor plan

 

Reception area

 

Offices with translucent walls

 

Private office

 

Open area

 

Solarium

 

View of terrace from the solarium

 

Conference room

 

Architectural details

 

Kitchen

 

Breakout area

Map

Transit

  • E
  • B
  • D
  • M
  • N
  • R
  • Q
  • W
Price Request

Space Requirements

Nearby Office Spaces